 
             
             
             
             
             
             
             
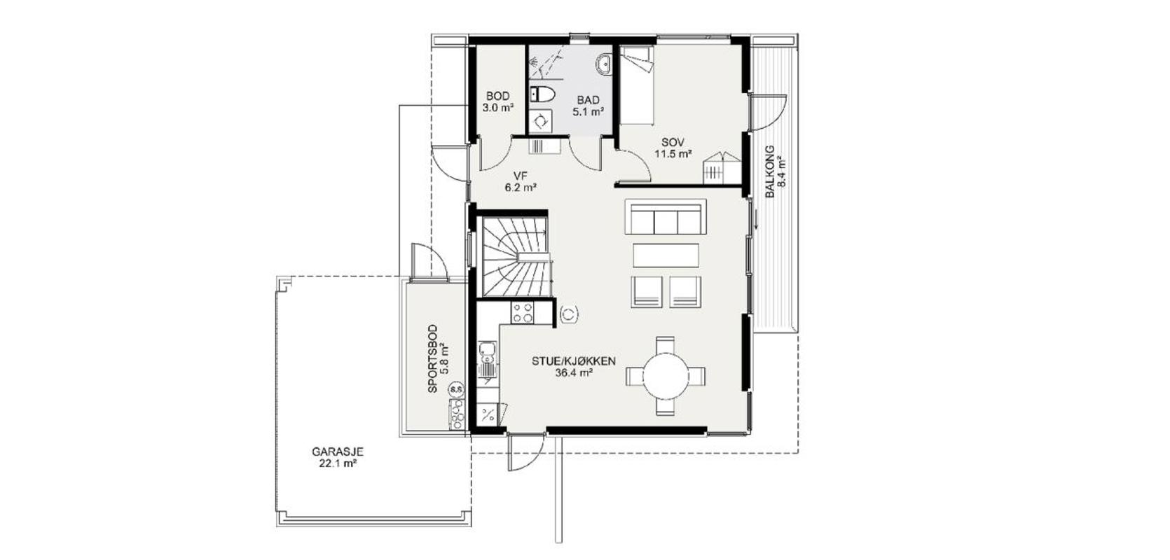
            På grunn av den skrå tomten ligger adkomsten til huset på øvre plan, med en stor overbygget carport og sportsbod som skaper et flott inngangsparti og tilknytning til huset. Inne i huset finner du alle nødvendige hovedfunksjoner på ett plan, inkludert stue, kjøkken, bad og soverom. Det store fellesrommet, som kombinerer både kjøkken og stue, har et flott hjørnevindu og store vindusflater som gir mye lys og karakter. Du har også tilgang til en lang balkong fra stuen gjennom en skyvedør i glass som skaper en fin åpenhet på varme dager.

I underetasjen finner du tre romslige soverom, et praktisk bad, en lagringsbod og en kjellerstue med en stor skyvedør i glass som fører deg ut til terrassen. Dette skaper en fin nærhet til uteområdet og slipper mye lys inn. Totalt har huset en bruksareal på 163 kvadratmeter, inkludert carport og sportsbod.
Signatur 301 er tilpasset for skrå tomter, og med sitt moderne uttrykk, store vindusflater og praktiske romløsninger vil det være et drømmehus for mange.